500万円
LDK+水まわりプラン
RENOVATION PLAN
予算に合わせて施工範囲を決める
■プラン例
- 工事内容
- LDK改築+水まわり
- 費用
- 100万円~
- 施工面積
- 7.45㎡(4.5帖)
- 工期
- 6日間
- 設備
- 風呂・トイレ
キッチン交換
- 家具
- LDKセット
Before
After
- 工事価格
- 500万円〜/10.5坪
(LDK8坪およそ16畳・水まわり2.5坪)
LDKフォトギャラリー
LDKリフォームでよくあるきっかけ
- 家にいる時間が増え、リビングを
快適にしたい - 子供が巣立って夫婦2人暮らしに
なった - 散らかったLDKをきれいにしたい
- お風呂やトイレ等水まわり機器が
古くなって修理が必要 - 遊びにくる孫と一緒に
お風呂に入りたい
60代夫婦
- 散らかったLDKをきれいにしたい
- 子供が大きくなり家族皆でLDKに
集まる機会が少なくなった - お風呂やトイレ等水まわり機器が
古くなって修理が必要 - 台所が孤立していて料理が
楽しくない
40代夫婦
施工事例
LDKリフォーム
戸建て・マンション、店舗、古民家も
工事範囲に合わせて理想を実現!
戸建て・マンション、店舗、古民家も工事範囲に合わせて理想を実現!
-
After
Before
After
サロンリノベーション
-
工事内容
サロンリノベーション
-
費用
100万円
-
築年数
20年
-
-
After
Before
After
ホテルライクマンションリノベーション
-
工事内容
全面リノベーション
-
費用
950万円
-
築年数
12年
-
-
After
Before
After
吹き抜けのある全面リフォーム
-
工事内容
お家まるごとリフォーム
-
費用
2600万円
-
築年数
45
-
-
After
Before
After
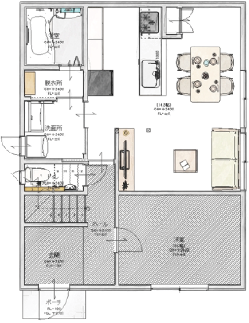
1階全面リフォーム
-
工事内容
1階全面リフォーム
-
費用
450万円
-
築年数
45
-
-
After
Before
After
1階全面リフォーム
-
工事内容
フルリノベ
-
費用
1,500万円
-
築年数
40年
-
-
After
Before
After
キッチン+リビングリフォーム
-
工事内容
LDKリフォーム
-
費用
350万円
-
築年数
34
-





